archtowns@yandex.ru
+7 (925) 374-71-32
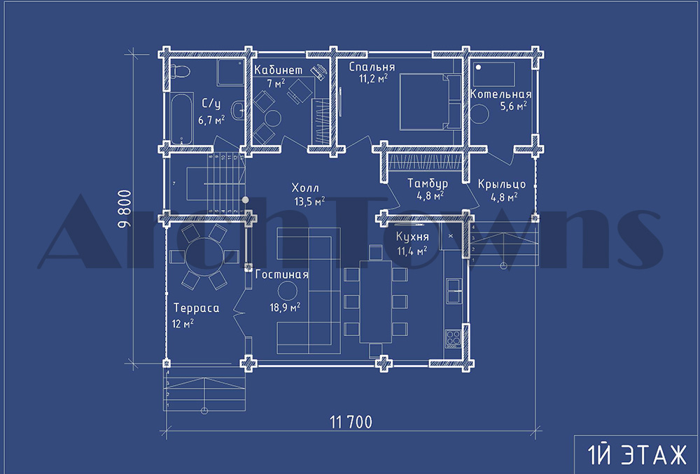
Общая площадь дома, кв. м.: 176
Материал: Бревно
Стиль: Современный
Этажность:Одноэтажные с мансардой
Число спален: Четыре, Три