archtowns@yandex.ru
+7 (925) 374-71-32
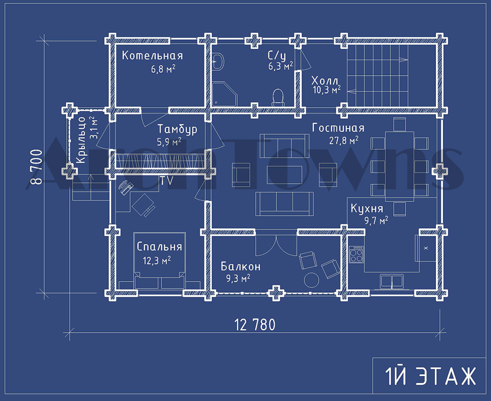
Общая площадь дома, кв. м.: 179
Материал: Бревно
Стиль: Классический
Этажность:Одноэтажные с мансардой
Число спален: Четыре